
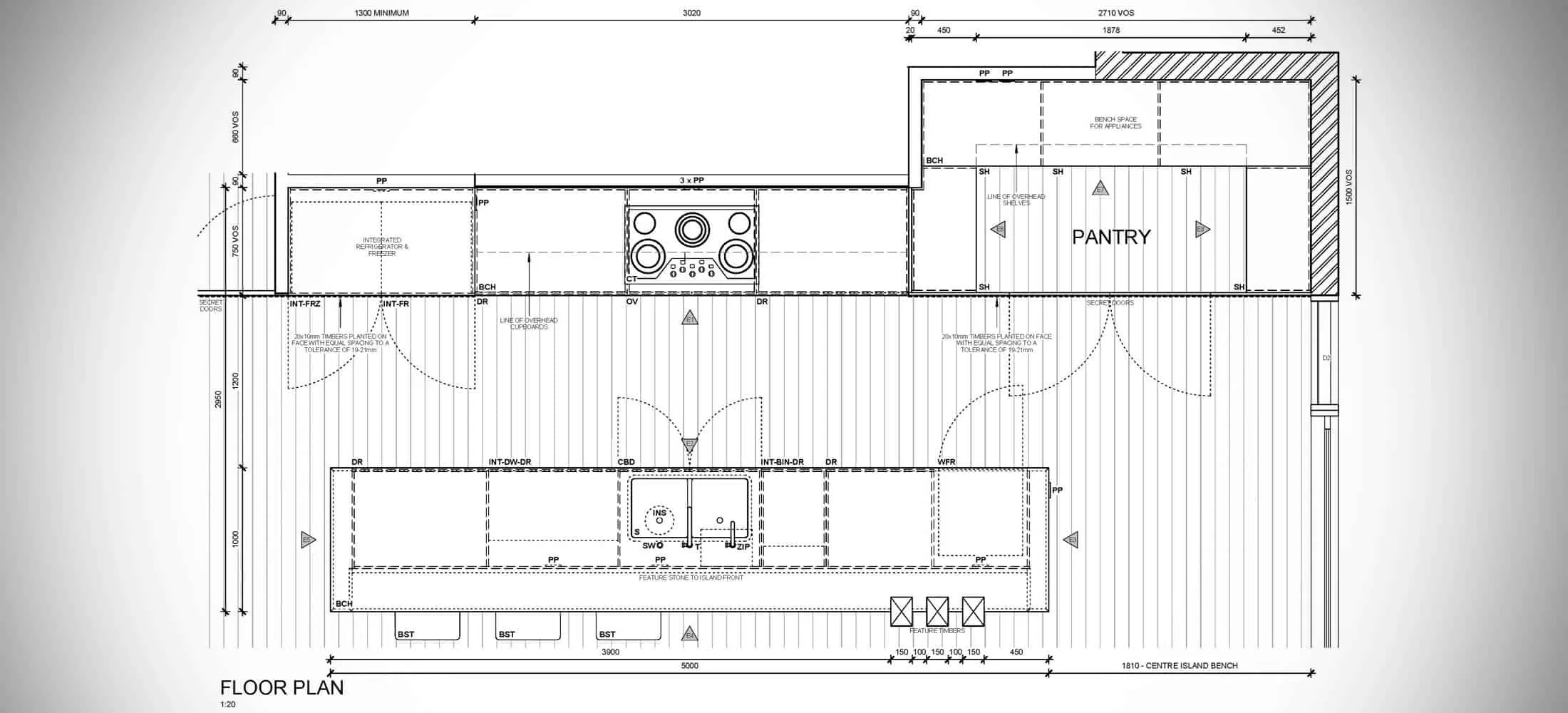
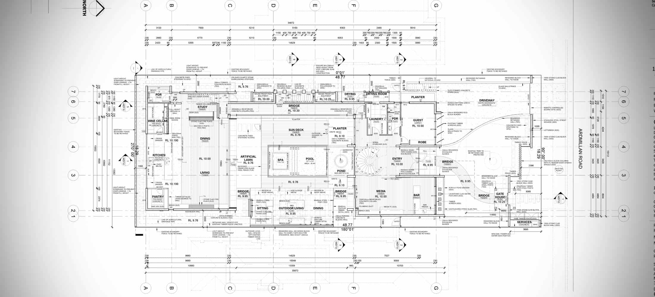
Schematic Design and Design Development, including provision of sketches, detailed briefs, and computer rendered 3D floor plans and elevations.



Schematic Design and Design Development, including provision of sketches, detailed briefs, and computer rendered 3D floor plans and elevations.

We are dedicated to the hallmarks of quality construction and workmanship throughout every facet of the building process.

We believe in integrative design, and providing custom cabinetry, furniture and landscape design services that complement the living space.

Our hands-on approach ensures that all workmanship and documentation satisfies planning requirements and DA submissions.

We manage the entire tender process, including all documentation relating to the reception, comparison and acceptance of contractors’ tenders.

We collaborate closely with clients, contractors and consultants to ensure each project responds to strict budget and time constraints.

If you would like to contact Chris Clout Design about our services and product please don’t hesitate to reach out.

Fill out our form and a team member will be in touch to with you to discss.
*All services provided by Chris Clout and Chris Clout Design are building design services only. Chris Clout and Chris Clout Design is expressly not an architect and does not engage in architectural services, architectural design or architectural design services as those terms are defined in the Architects Act 2002 (Qld).